物件価格
2,440万円
月々のお支払い例
1,659.77円
※金利1.20% 借入金額:物件価格、借入期間35年
物件の特徴
主な設備
電気
上水道
下水道
側溝
IHクッキングヒータ
カウンターキッチン
トイレ2箇所
クローゼット
主な特徴
2階建
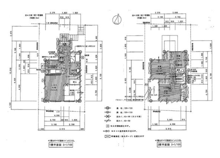
物件概要
| 価格 | 2,440万円 | 間取り | 4LDK |
|---|---|---|---|
| 物件種別 | 中古一戸建て | ||
| 所在地 | 鹿児島県鹿児島市武岡2丁目 | ||
| アクセス | JR鹿児島本線『鹿児島中央』 バス乗車20分 明和 停 徒歩4分 (約320m) |
||
| 建物面積 | 89.01㎡ | 駐車場 | あり 普通:2台 |
| 築年月 | 2015年(平成27年)01月築 | ||
| 建物構造 | 木造 2階建て 2階建 | 工法 | |
| 主要採光 | 南向 | バルコニー | |
| 保証・評価 | |||
| リフォーム | |||
| 土地面積 | 公89.01㎡(26.92坪) | 接道 | |
| 私道 | セットバック | ||
| 地目 | 宅地 | 地勢 | 高台 |
| 権利 | 所有権 |
||
| 都市計画 | 市街化区域 |
用途地域 | 1種低層 |
| 建ぺい/容積率 | 50% / 80% | 土地国土法 | |
| 許可番号 | 建築基準法 | ||
| 法令制限 | |||
| 小学区 | 武岡小学校 徒歩5分 (約380m) | 中学区 | 武岡中学校 徒歩15分 (約1160m) |
| 現況 | 賃貸中 | 引渡 | 相談 |
| その他費用 | |||
| 周辺環境 | 鹿児島市立武岡小学校 徒歩5分 (約380m) 鹿児島市立武岡中学校 徒歩15分 (約1160m) セブン-イレブン 鹿児島武岡店 徒歩6分 (約460m) |
||
| 備考 | |||
| 物件番号 | 3991512 | 取引態様 | 媒介 |






























